Quadrilocale in vendita

Rimini, Via Poschiavo - Miramare
€ 320.000
9 locali 9 locali
178 Mq 178 Mq
2 bagni 2 bagni

Quadrilocale in vendita

Rimini, Via Poschiavo - Miramare

Descrizione annuncio

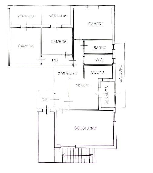
A Miramare in via Poschiavo proponiamo in vendita un appartamento quadrilocale con ingresso indipendente, ampio giardino, tavernetta e parcheggio interno per 3 posti auto con affaccio sul parco Spina: con tanto verde, silenzio e aria buona.

Perfetto per chi cerca spazio, tranquillità e quel tocco di semindipendenza che oggi vale oro.

Ingresso indipendente al piano primo con accesso da portoncino blindato.

Ingresso, sala, cucina ristrutturata abitabile ... lo chef non può lamentarsi per la mancanza di spazio, con una comoda veranda e balcone, disimpegno per la zona notte con 3 camere da letto di cui due con affaccio sul parco tramite un'ampia veranda, 2 bagni rifatti finestrati con doccia.

Impianto elettrico nuovo, caldaia a condensazione, pompe di calore.

Pavimenti, porte e infissi aspettano un tocco di ammodernamento... così puoi scegliere tu se andare sul moderno, lo chic o rimanere sullo stile 'casa della nonna due punto zero'.

Giardino spazioso per barbecue o per dire 'è tutto mio!'

Cantina adibita a tavernetta per cene, brindisi, tombolate, palestra o lavanderia ma anche rifugi strategici per i figli.

Fissa un appuntamento per questa casa già libera, spaziosa, semindipendente e con tanto potenziale. Da vedere, da vivere e, perchè no, da personalizzare.

Chiamaci allo 0541 37 70 74 e ti accompagneremo volentieri!

Mostra tutto

Nelle vicinanze

Trasporto pubblico Trasporto pubblico
stazione di Rimini Miramare
stazione di Rimini Miramare
490 m
Lucerna
Lucerna
410 m
Miramare Station
Miramare Station
520 m
Ricariche auto elettriche Ricariche auto elettriche
Eneldrive Bagno 141
710 m
Eneldrive Bagno 87
2,9 Km
Scuole Scuole
Scuola Primaria Statale "Villaggio Nuovo"
1,3 Km
Istituto Tecnico Turistico "Marco Polo"
1,9 Km
Scuola Primaria Annyka Brandi
2,2 Km
Istituto Professionale Alberghiero di Stato Sigismondo Pandolfo Malatesta
2,3 Km
Scuola Elementare "Il Cammino"
2,5 Km
Farmacia Farmacia
Parafarmacia
540 m
Farmacia Miramare
700 m
Farmacia Rivazzurra
1,5 Km
Veltri
1,8 Km
Farmacia
2,1 Km
Supermercati Supermercati
Coop
680 m
Lidl
1,3 Km
EuroSpin
1,8 Km
Euromarket
2,3 Km
Tuodì
2,4 Km
Negozi Negozi
Negozi
550 m
A&O
2,1 Km
Grazia
2,1 Km
Wendy
2,2 Km
MINIMARKET
2,2 Km
Bar Bar
Altromondo Studios
200 m
Bar
530 m
gelateria pasticc.
550 m
Bar Spport
580 m
pasticc
660 m
Ristoranti Ristoranti
Al Gufo
160 m
Ristoranti
640 m
pesceazzurro
690 m
La Zucca piz rist
760 m
Pizza Italia
790 m
Mostra tutto

Caratteristiche

Rif.:
61062667
Piano:
1 di 3 (Piano basso)
Posti auto:
3
Balconi:
2
Camere da letto:
3
Arredamento:
Parziale
Mostra tutto
Prezzo Prezzo
€ 320.000
Rata mutuo Rata mutuo
€ 1.510 / mese
Proponi il tuo prezzoProponi il tuo prezzo

Classe Energetica

F
F
F
F
F
F
F
F
F
EP globale non rinnovabile:
174.97 kW h/m² anno
EP globale rinnovabile:
0.89 kW h/m² anno
EP invernale del fabbricato:
EP estiva del fabbricato:
Anno di costruzione:
1974
Riscaldamento:
Autonomo
Tipo impianto:
A radiatori
Tipo alimentazione:
Metano

Ti interessa visionare l'immobile?

Fissa un appuntamento  Fissa un appuntamento

Richiedi informazioni

Clicca su Leggi per aprire l'informativa
* Questi campi sono obbligatori

Calcola il tuo mutuo

Semplice e senza impegno
Anticipo

( % )
Mutuo

( % )

pochi semplici passi

inserisci i tuoi dati
Questionario completato
Grazie per aver richiesto un appuntamento senza impegno con un nostro Consulente del Credito e Assicurativo.

Hai inserito correttamente tutti i dati necessari e a breve riceverai una e-mail con un link da convalidare per inviare i tuoi dati.
Affiliato
Studio Rivazzurra D.I.
Via Dei Martiri, 54/A 47924 Rimini (RN)

Il nostro staff


  • Massimiliano Gabrielli
    Affiliato

  • Cristina Urbani
    Coordinatrice

  • Gennaro Esposito
    Collaboratore
Via Dei Martiri, 54/A 47924 Rimini (RN)
Zona: Rimini-Marebello-Rivazzurra-Miramare
Mostra su mappa
Orari: Lun/Ven 9.00/13.00 15.30/19.30 Sab.9.00/13.00
Affiliato
Studio Rivazzurra D.I.
Via Dei Martiri, 54/A 47924 Rimini (RN)

2025 Tecnocasa Franchising S.p.A. - P. IVA 08365160152 - Via Monte Bianco 60/A 20089 Rozzano (MI). Ogni agenzia ha un proprio titolare ed è autonoma. Privacy policy | Policy utilizzo | Cookie policy